
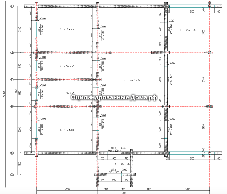
Этот дом предлагает комфортное и функциональное пространство для жизни. Планировка позволяет удобно разместить все необходимые помещения, обеспечивая уют и удобство для жильцов.
1. Спальня:
- Расположена в левой и правой части дома.
- Они имеют достаточно места для комфортного размещения кровати, шкафа и другой мебели.
2. Кухня - Столовая:
- Объединенное пространство, что позволяет удобно готовить и принимать пищу.
- Идеально подходит для семейных ужинов и встреч с друзьями.
3. Гостиная:
- Центральное помещение, предназначенное для отдыха и приема гостей.
- Просторная и светлая, что создает уютную атмосферу.
4. Котельная:
- Помещение расположено по центру между спален и ванной предназначено для размещения отопительного оборудования.
- Обеспечивает комфортное отопление дома.
5. Ванная:
- Современное и функциональное пространство для гигиенических процедур.
- Может быть оборудована ванной или душевой кабиной.
6. Тамбур:
- Небольшое помещение у входа в дом.
- Служит для хранения верхней одежды и обуви.
7. Терраса:
- Идеально подходит для отдыха на свежем воздухе и проведения летних вечеров.






ПОЛУЧИТЕ КОНСУЛЬТАЦИЮ ПРЯМО СЕЙЧАС!
Просто напишите свое имя, номер телефона или E-mail и жмите "ОТПРАВИТЬ". Мы вам перезвоним, ответим на все вопросы и поможем разобраться во всех тонкостях и деталях.
+7 (495) 40-917-40
Строительство деревянных домов из оцилиндрованного бревна
Данный ресурс носит информационный характер и публичной офертой, которую определяют положения ст. 437 Гражданского кодекса РФ, не является.
ГЛАВНАЯ | ЦЕНЫ | ГАЛЕРЕЯ | ДОСТАВКА | ДОКУМЕНТАЦИЯ | ПРОИЗВОДСТВО | ЭТО ИНТЕРЕСНО | КОНТАКТЫ