
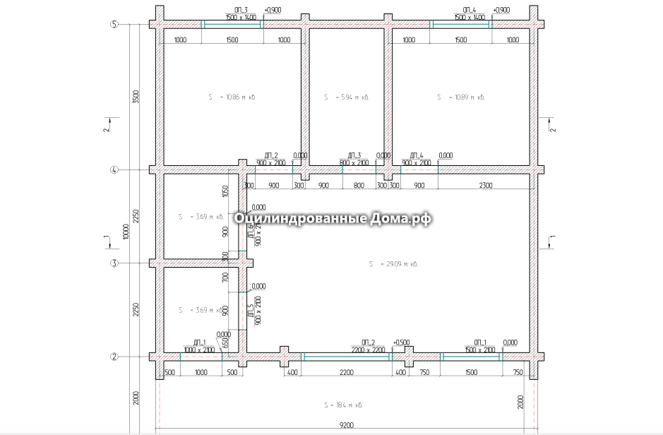
Этот симпатичный дом, идеально подходит для семьи, ищущей не большой комфортный дом с функциональной планировкой. Просторные комнаты, удобная связь между ними и наличие совмещенной зоны для приготовления пищи и гостиной, делают этот дом удобным для повседневной жизни.
Этот дом предлагает комфортное и функциональное пространство для жизни. Планировка позволяет удобно разместить все необходимые помещения, обеспечивая уют и удобство для жильцов.
1. Спальня:
- Расположена в левой и правой части дома.
- Они имеют достаточно места для комфортного размещения кровати, шкафа и другой мебели.
2. Кухня - Столовая:
- Объединенное пространство, что позволяет удобно готовить и принимать пищу.
- Идеально подходит для семейных ужинов и встреч с друзьями.
3. Гостиная:
- Центральное помещение, предназначенное для отдыха и приема гостей.
- Просторная и светлая, что создает уютную атмосферу.
4. Котельная:
- Помещение расположено по центру между спален и ванной предназначено для размещения отопительного оборудования.
- Обеспечивает комфортное отопление дома.
5. Ванная:
- Современное и функциональное пространство для гигиенических процедур.
- Может быть оборудована ванной или душевой кабиной.
6. Тамбур:
- Небольшое помещение у входа в дом.
- Служит для хранения верхней одежды и обуви.
7. Терраса:
- Идеально подходит для отдыха на свежем воздухе и проведения летних вечеров.
Охотничий домик на берегу водохранилища, не мечта ли настоящего мужчины. И многово там не нужно, пару спален, сан. узел, гостинная совмещенная с кухней и конечно же огромная терраса. Изюминка этого дома бревно диаметров 260мм выполненая в полулафет, то есть снару жи у нас круглое бревно, а внутри дома лафет, прямые стены как у профилированного бруса. Весь дом отшлифован и покрашен бесцветным маслом.
Одноэтажный дом (13м х 16м) с антресолью, построен в Владимирской области из оцилиндрованного бревна 280мм. Это младший собрат проекта "Русское ШАЛЕ" (13м х 18м). В этом проекте есть всё что и в придыдущем, но чуть более скромными размерами. Дом был отбраширован и покрашен маслом "Биофа" с очень интересным оттенком.
Дом был построен по типовому проекту "Шале ЛУГАНО" (11,5м х 12м), из оцилиндрованного бревна диаметром 240 мм. Свайный ж.б. фундамент был забит в феврвле месяце, а дом построен под временную кровлю в марте. Кровлю из ондувиллы покрыли уже в мае месяце.
Дом с мансардой из оцилиндрованного бревна 240мм. был построен для небольшой семьи и полностью спроектирован по желаниям заказчиков. Гостиная с вторым светом и совмещённая с кухней, хол и котельная, сан.узел и крыльцо. Мансарда с комнатой отдыха, сан. узлом и холлом.
Строительство дома из оцилиндрованного бревна диаметром 300 мм. по видоизменённому проекту "Дубрава" (9м х 12,5м). Дом изготовлен из бревна зимней заготовки и собран на ж.б. свайный фундамент в июле месяце под мягкую кровлю.
Реализация очередного видоизменённого проекта в Крыму "Селигер". К проекту дома была добавлена просторная терраса на сваях, для комфортного отдыха на свежем морском воздухе. Так же в доме имеются 3 спальных комнаты, просторная гостиная совмещённая с кухней с выходом на террасу. В доме придусмотренны 2 сан. узла на первом этаже и мансарде, балкон и веранда с входом в тамбур и проходом на террасу.
Интересное преобразование типового проекта Шале "МОНТЕ-РОЗЕ". Огромные гостиная совмещённая с кухней, 2 спальные комнаты, сан.узел и котельная. Большим бонусом просторная терраса и крыльцо.
Небольшой одноэтажный дом из оцилиндрованного бревна 280мм. и с общими размерами по осям 6м х 8м, бросается в глаза своим интересный видом под "Дикий Сруб". Имеет террасу, гостиную совмещённую с кухней, спальню и сан. узел
Дом из оцилиндрованного бревна 240мм. с общими размерами по осям (6,2м х 10м), был построен весной в 2020г. и накрыт мягкой кровлю. Осенью 2021года он был забраширован и законсервирован маслом Биофа.
Дом из оцилиндрованного бревна 280мм.по проекту "ДУБРАВА" (9,5м х 12,5м) был построен зимой 2019 года, был обработан антисептиком и осенью того же года накрыт кровлей Ондувилла Турино. Летом 2021 года, дом был браширован с наружи и внутри и покрашен маслом Биофа. Осенью того же года были изготовлены и установленны деревянные стеклопакеты с клеёной обсадой и наличниками в том же цвете.
ПОЛУЧИТЕ КОНСУЛЬТАЦИЮ ПРЯМО СЕЙЧАС!
Просто напишите свое имя, номер телефона или E-mail и жмите "ОТПРАВИТЬ". Мы вам перезвоним, ответим на все вопросы и поможем разобраться во всех тонкостях и деталях.
+7 (495) 40-917-40
Строительство деревянных домов из оцилиндрованного бревна
Данный ресурс носит информационный характер и публичной офертой, которую определяют положения ст. 437 Гражданского кодекса РФ, не является.
ГЛАВНАЯ | ЦЕНЫ | ГАЛЕРЕЯ | ДОСТАВКА | ДОКУМЕНТАЦИЯ | ПРОИЗВОДСТВО | ЭТО ИНТЕРЕСНО | КОНТАКТЫ